Wettbewerb Ersatzneubau Raiffeisenbank Ybrig
Wettbewerbe
Die neue Raiffeisenbank befindet sich im Dorfzentrum von Unteriberg. Heterogene Bebauungsstrukturen wie kleinteilige Wohnhäuser, flächige Gewerbebauten und historische Dorfhäuser treffen hier aufeinander und definieren das nähere städtebauliche Umfeld.
An der Kreuzung zwischen der Waagtalstrasse und der Oberibergerstrasse stehend, bildet die neue Raiffeisenbank die «neue Dorfmitte» und grenzt an einen zentralen Platz, welcher als Treffpunkt oder zum Warten auf den öffentlichen Verkehr den Ort belebt und aufwertet.
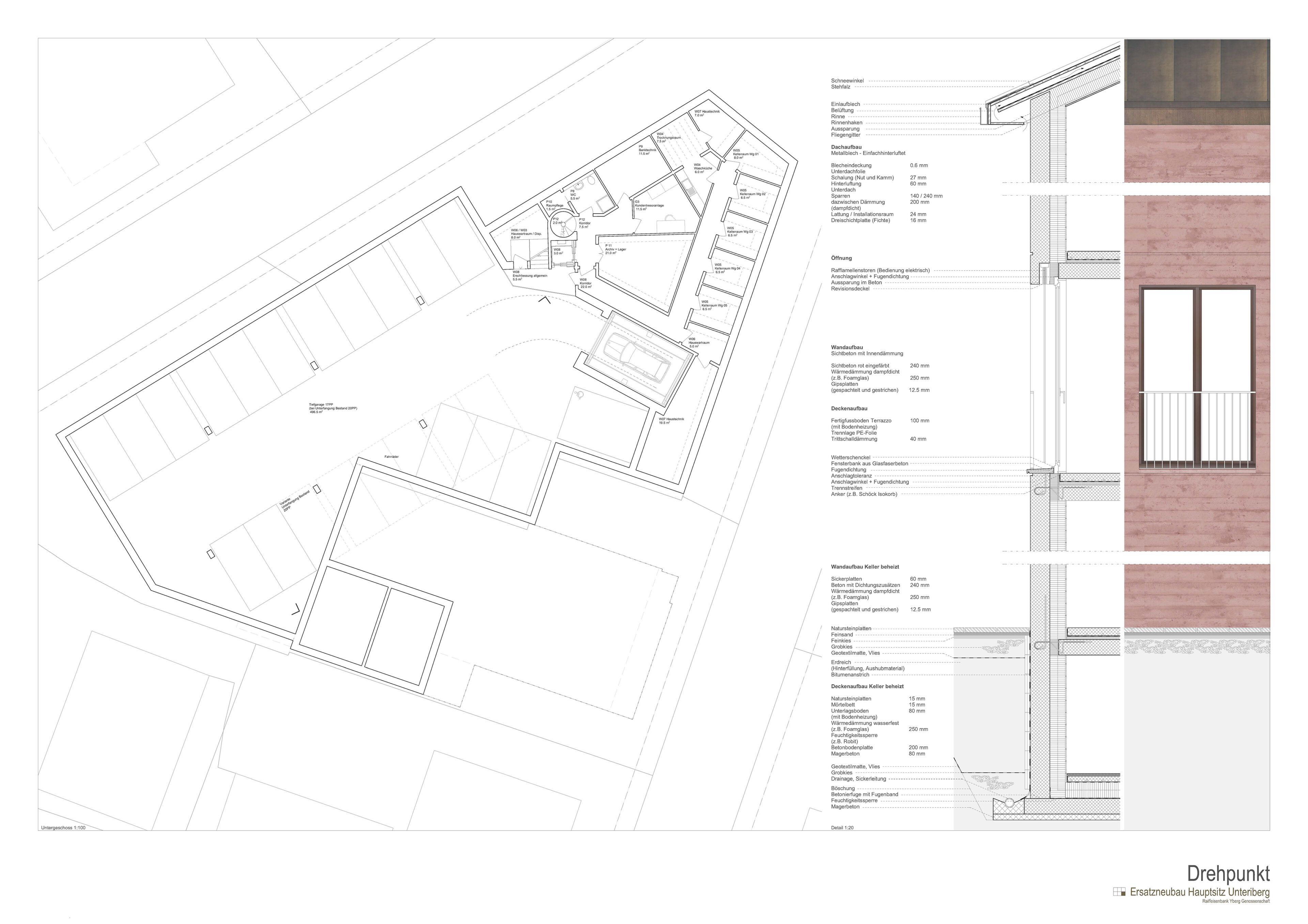
Der gefasste Strassenraum der Waagtalstrasse wird fortgeführt und in seiner Zentrumsfunktion gestärkt. Durch die zum «Dorfplatz» orientierte Giebelfassade bildet das Gebäude eine Torsituation. Die sechs Fassaden des neuen Baukörpers (3 Giebelfassaden / 3 Trauffassaden) reagieren auf die unterschiedlichen Situationen. Als Platzfassade (Giebel) oder Strassenraumfassade (Traufe) wird durch die Ausformulierung die städtebauliche Anbindung an die bestehenden Strukturen gesucht und der Neubau als Drehpunkt, d.h. als «neue Dorfmitte» verstanden.
Durch die Anordnung der 3 Giebelfassaden werden 3 Aussenräume gebildet: Dorfplatz, Wohnungszugang und Vorbereich der Raiffeisenbank. Eine Linde mit einer ringförmigen Bank und Sitzsteinen unterstreicht die Zentrumsfunktion des Dorfplatzes und soll zum Verweilen einladen.
Standort
Unteriberg
Bauherrschaft
Raiffeisen Schweiz Genossenschaft
Raiffeisenplatz 4
9001 St. Gallen
Architektur
BSS Architekten AG
Herrengasse 42
6430 Schwyz
Wettbewerb
einstufig, 2015
Bauzeit
–
Raumprogramm
Neubau Filiale Unteriberg mit Wohnnutzung





