Wettbewerb mori no yama
1.Rang – Wettbewerb Kantonsstrasse 37, Freienbach
mori no yama – das Projekt zwischen zwei Lärmquellen. Im Norden verläuft die Eisenbahnlinie, im Süden führt die Kantonsstrasse durch. «mori no yama» ermöglicht nach Norden einen traumhaften Blick auf den nahegelegenen Zürichsee und orientiert sich gleichzeitig nach Süden.
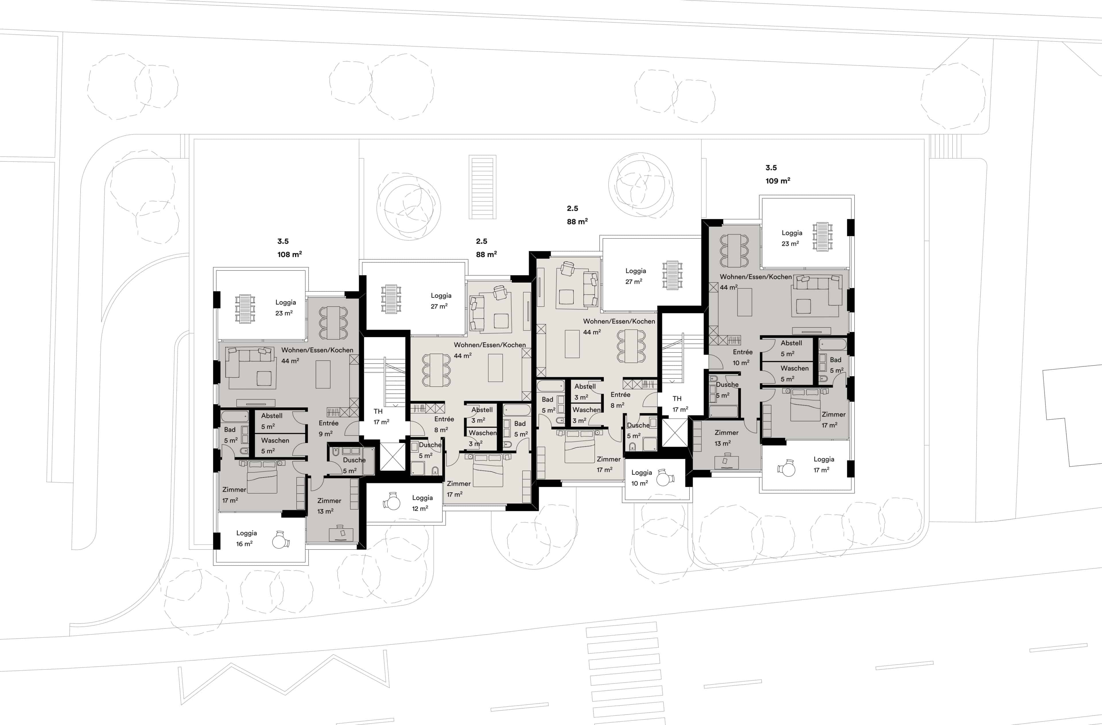
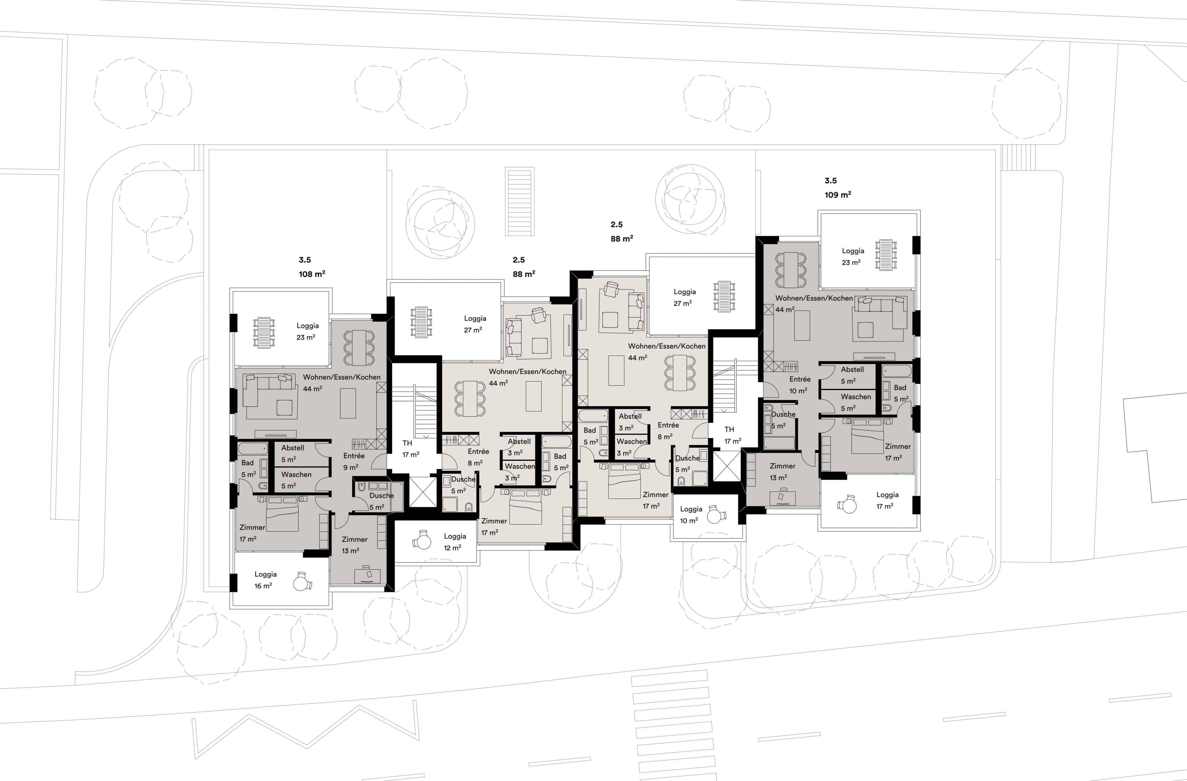
Damit das Grundstück optimal ausgenützt werden kann, basiert das Projekt auf einem zusammenhängenden Volumen. Um das Volumen kleinteilig zu gestalten, sind die Nord- und Südfassade gestaffelt. Dank dieser Staffelung fügt sich das verhältnismässig grosse Volumen subtil in die bestehende Bebauungsstruktur ein.
Das Konzept für das Projekt bilden die oben erwähnten Themen: Lärmschutz, die Aussicht auf den Zürichsee und der Bezug nach Süden. Die Logik des Projekts folgt somit folgendem Konzept: nord- und südseitig sind Loggien positioniert, an die Wohn- und Schlafräume angrenzen. Dank dieser Massnahme sollte es möglich sein, die Wohn- und Schlafräume lärmabgewandt an der Nord- und Südfassade zu positionieren. Somit sind sämtliche Wohn- und Schlafräume an der Fassade angeordnet, wodurch in allen Wohnungen der Ausblick auf den Zürichsee oder der Bezug nach Süden ermöglicht wird. Zwischen den Wohn- und Schlafräumen befinden sich die dienenden Räume mitsamt den Erschliessungskernen. Dank der Staffelung des Volumens, gelingt es sämtlichen Wohnungen mehr Privatsphäre zu schenken.
Im Sinne der Kleinteiligkeit soll die Fassade mit feingliedrigem, pulverbeschichtetem Trapezblech verkleidet werden. Das vermeintlich industrielle Trapezblech soll subtil unterstreichen, dass sich das Gebäude in einer Mischzone befindet. Durch das spezielle Muster der Verkleidung und der edlen Pulverbeschichtung wird dem Gebäude jedoch klar die Erscheinung eines hochwertigen Wohngebäudes verliehen.


