Schul-und Sportanlage Oberarth
Neubau
Der geplante Neubau bildet den neuen Auftakt der Aufreihung von Schulgebäuden Stegweidli und Bifang. Das Gebäude bildet ein Gelenk, welchem es gelingt, die grossflächige Sportanlage sinnvoll in den Grundstückswesten zu legen und dabei die Sporthalle als Abschluss der Schulhausbauten auszubilden. Der Bifangweg wird neu entlang der Aussensportanlage gelegt.
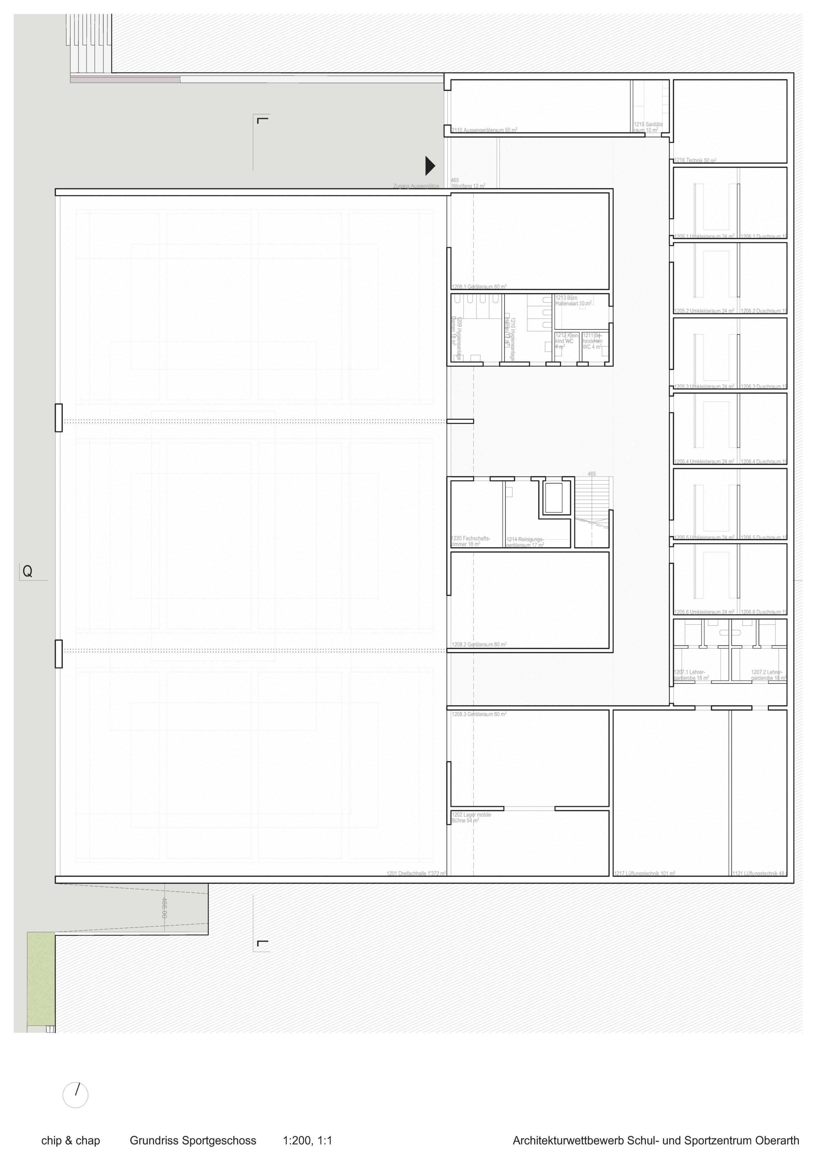
Vom Foyer gelangt man auf die abgestufte Zuschauergalerie, welche dem Nutzer einen Überblick über die ganze Halle ermöglicht. Linker Hand befinden sich, klar sichtbar und von der Schulnutzung abgetrennt, der Abgang zu den Umkleideräumen und die Zugänge zu den Sporthallen. Daneben sind die Multifunktionsräume angeordnet, welche damit den nötigen Öffentlichkeitsgrad erhalten, um auch für weitere Nutzungen Raum zu bieten.
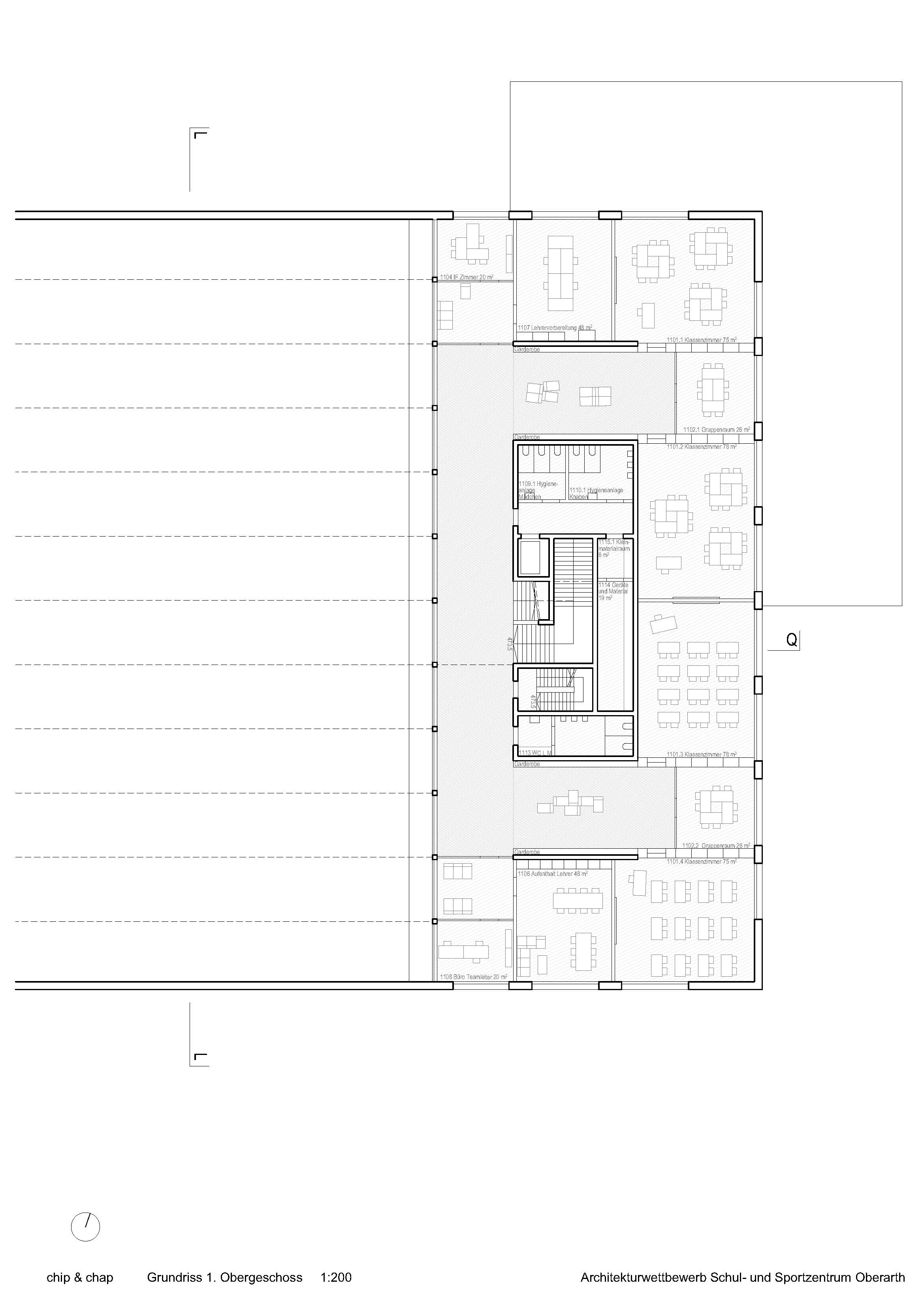
Die zwei oberen Geschosse sind dem Schulbetrieb vorbehalten. Es werden darin sowohl die acht Klassenzimmer, wie auch die Gruppenräume, Lehrerzimmer und die Vorbereitungsräume angeordnet. Ebenso finden das IF-Zimmer, die Niveauzimmer und das Teamleiterbüro ihren Platz. Sämtliche Schulräume sind entlang der Aussenfassade angeordnet und können daher mit Aussicht, Tageslicht und einer natürlichen Lüftung versorgt werden.
Standort
Tramweg 1-12
6414 Oberarth
Bauherrschaft
Bezirk Schwyz
Brüöl 7
6430 Schwyz
Gemeinde Arth
Rathausplatz 1
6415 Arth
Architektur
BSS Architekten AG
Herrengasse 42
6430 Schwyz
Bauleitung
BSS Architekten AG
Herrengasse 42
6430 Schwyz
Wettbewerb
1. Rang, einstufig 2018
Bauzeit
Mitte 2019 – Mitte 2021
Raumprogramm
– 8 Klassenzimmer
– 2 Niveauzimmer
– 4 Gruppenräume
– weitere dem Unterricht dienende Räume wie IF-Zimmer, Lehrervorbereitung, Fachschaftszimmer etc.
– 3-Fach-Sporthalle
– Multifunktionsräume
– Garderobenbereiche
– Mehrzwecksaal
– Aussensportplätze und Pausenräume








