Wettbewerb Alterszentrum Frohmatt
Dorfrundgang, Orientierung und Identitat
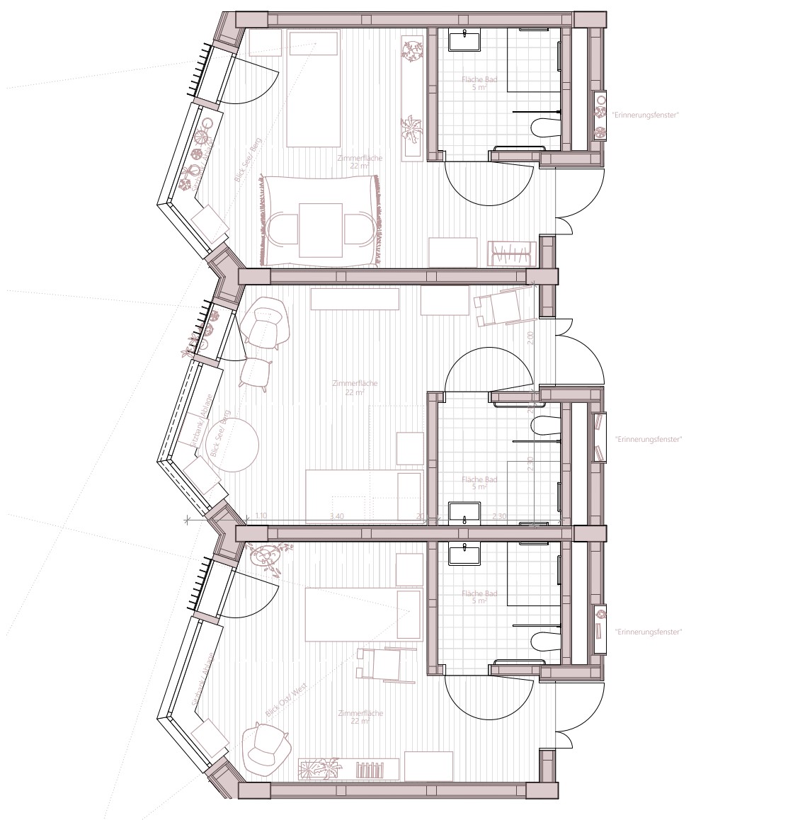
Der Entwurf des Alterszentrums Frohmatt setzt auf Orientierung, Erinnerung und Identitat, zentrale Aspekte im Umgang mit Demenz. Das Gebaude ubersetzt das vertraute Leben eines Dorfes in raumliche Erlebnisse, persönliche Zimmer dienen als Rückzugsorte, kleine Sitznischen fördern Begegnungen, der Aufenthaltsraum fungiert als Dorfkino, und ein Rundweg erinnert an vertraute Wege. Pflegebader, Leseecken, individuell gestaltbare Erinnerungsfenster sowie ein Demenzgarten schaffen Orientierung, emotionale Anker und ein Gefuhl von Zugehörigkeit.
Architektur und Setzung
Die Architektur reagiert auf die kleinteilige Umgebung und ordnet sich den grossmassstäblichen öffentlichen Bauten im Süden unter. Der Hauptbaukörper orientiert sich zum See, wahrend verbindende Baukörper Durchblicke und Erlebnisse im Aussenraum schaffen. Ein drittes Volumen ergänzt behutsam die bestehenden Gebaude und wahrt den Respekt gegenuber dem Bestand. Der Abstand zum Wald auf der Ostseite sorgt fur ein harmonisches Verhaltnis zur Natur.
Nutzung und Zugänglichkeit
Das Gelände bleibt frei von motorisiertem Verkehr, Parkplatze befinden sich in der Tiefgarage mit zenital belichtetem Ankunftsbereich. Eine zentrale Erschliessungsachse verbindet Fussganger und Radfahrer mit dem Herz der Anlage. Das Erdgeschoss bietet öffentlich zugängliche Nutzungen wie Restaurant, Cafe, Coiffeur und Pedicure. Im ersten Obergeschoss befinden sich Tagesstatte und medizinische Bereiche, daruber vier Wohngeschosse mit acht Stationen, zwei davon mit eigenem Aussenbereich. Begrünte Dachterrassen eröffnen Ausblicke auf See und Berge.
Optionale Nutzung
Der zentrale Ankunftsbereich kann als belebter Dorfplatz mit Cafe und Restaurant gestaltet werden, alternativ kann die Nutzung zwischen Erdgeschoss und medizinischem Bereich verschoben werden, um Betrieb und Zugänglichkeit optimal zu gestalten.
Gestaltungskonzept und Zugang
Der Zugang zur Anlage gestaltet sich als sinnliche Reise aufs Land mit Holzzaunen, Tiergehegen, Wasser- und Gruenflachen. Wege, Aufenthaltszonen und Materialwahl, Kies, Naturstein und Holz, unterstreichen den landlichen Charakter. Der Sinnessgarten vor Haus Tal schafft einen Übergang zwischen Natur und gebautem Raum, wahrend Aufenthaltsqualitat und Biodiversitat im Vordergrund stehen.
Vegetation und Dachgestaltung
Die Bepflanzung wandelt sich von offenen, landwirtschaftlich geprägten Flachen hin zu geschützten, blühenden Gärten mit Obstbaumen, Stauden und Kleinbaumen. Der Frohmatt-Platz erscheint als „geheimer Garten“ mit ruhigen Aufenthaltsbereichen, strukturierenden Trockenmauern und Waldvegetation im Norden. Gruendacher mit Hochbeeten und Sitzplatzen bieten privaten Rückzugsraum, wahrend extensiv begrünte Dachflachen Photovoltaik aufnehmen. So entsteht ein naturnaher, funktionaler und ökologisch hochwertiger Raum.









